When on the hunt for our new home we really struggled to knock items off our ‘want’ list. We looked at both new and older homes, but seemed to continue to run into a more traditionally laid out home with several smaller rooms like living room, family room, kitchen, breakfast nook, dining room, the list could go on.. it seemed like such a waste of space and money really as we (or me.. let’s be honest) would feel like I need to fit it out to help make the space flow. We really enjoy entertaining and found ourselves wishing for a more open concept space to comfortably host guests and to enjoy as a family. With only a week to exhaust all of our options, we had finally narrowed it down to two older homes that had potential for a more open concept layout, but finally agreed on the home that had a great backyard, cute, mature treed neighbourhood and less then a 10 minute walk to school!
Renovations are SO MUCH WORK.. if you’ve ever renovated you’ll know what I mean!! And we’re doing this from afar which in hindsight we would definitely not recommend, but we’ve managed to make it work and have a contractor that has been great at giving us daily updates.. so I thought I would share some of the progress with you!
The majority of the renovation is going to take place in the kitchen and basement with some updated flooring and paint throughout the rest of the home. A huge plus for this house is the basement came unfinished which allowed for us to completely start from scratch and make it our own. For this post though, I thought I would focus on the kitchen and save the basement for a later post. At this point, demolition of the kitchen is complete. Not shown in the photo but, a good portion of the left wall in the kitchen is torn down and will open up to the dining room and living room to hopefully create the open concept we are looking for!
KITCHEN BEFORE
KITCHEN DURING
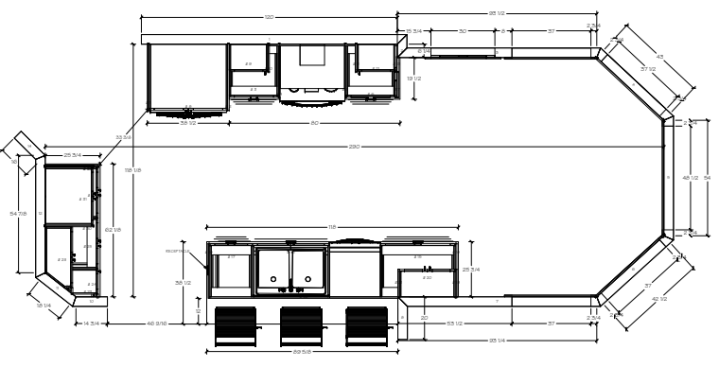
You can also see our plans designed by the guys at Chevrin Kitchen & Bath located in Waterloo, Ontartio. Since we were fairly limited to the expansion of the kitchen and are knocking down a wall (we would lose upper cabinet space) I really did not want this space to feel crowded and limit ourselves on counter space and storage, so with many back and forth suggestions I think we nailed it as best we could! Check out below to see the final drawings!
PLANS FOR THE KITCHEN
To give you a better understanding of the layout, on the other side of the island/sink will be the dining room and to the right of the dining room will be our living room.

We were spoiled in our last home with having a designated pantry, but unfortunately with this new home creating something similar was near in possible. After expressing our concerns with Henry from Chevrin Kitchen & Bath we decided to add pull-out drawers to this space shown above in the lower cabinets to allow for easy access to things like baking supplies, snacks, canned goods, etc.

Here’s an overhead view of the kitchen to hopefully help you piece together the layout. There is also a breakfast nook as you can see in this overhead view to the right of the kitchen. My plans currently are to have built-in seating with a cute round table where the kids can sit and eat their breakfast and when we get there.. do they homework or school projects! Follow along on my Pinterest board for some ideas I have in mind!
At this moment, the progression of the new kitchen has begun with some new lighting to go in, and shortly after floors, cabinets and paint! The scary part.. the plan is to have it all done by the beginning of August! Keep your fingers and toes crossed for us eek!!
For all you clever mommas out there that are great with organizing and kitchen storage space I would LOVE to get your input on tips and tricks to optimize this space. Especially with the pantry area.. I’m worried we may be tight on space!!
Help to ease my mind and resolve my organization struggles!!
Andreana xo